'n speldenprik in heerlen begeleiders: Jos Bosman, Joost Glissenaar & Marcel Musch
februari 2015 - februari 2016 afstudeerproject - diverse exposities, zie ook 'portfolio - overig'
over heerlen, leegstand, fietsen en frits peutz In dit project is de uitdaging gezocht in het omgaan met leegstaande panden en daar een invulling aan geven die daadwerkelijk een kans van slagen zou kunnen hebben. Leegstand pak je niet zomaar aan met grootse gebaren, slooppartijen of grote nieuwe gebouwen die met hun ‘nieuwe’ functie ineens alle problemen moeten oplossen. ‘Roeien met de riemen die je hebt’; in dit geval de stad en het centrum dat wel degelijk op bepaalde plekken goed functioneert, druk is, sfeervol is, éígen is. Een stad met een aantal prachtige voorbeelden van architectuur van het ‘nieuwe bouwen’, met dank aan Frits Peutz. Een stad met een bijzonder mijnverleden, dat nog overal – misschien niet letterlijk – te voelen is. Een stad in een gebied dat helemaal niet zo Nederlands is, misschien juist wel bijna Duits. Waar het landschap begint te glooien, waar België en Duitsland al tastbaar zijn. De oplossingen in dit project zijn speldenprikken in het speldenkussen Heerlen. Door naar de specifieke plek te kijken, kun je met een kleine, slimme ingreep een bouwblok en zijn omgeving een complete opkikker geven. Precies díé pijnpunten aanpakken. Die prikken samen helpen Heerlen weer leefbaar te maken.
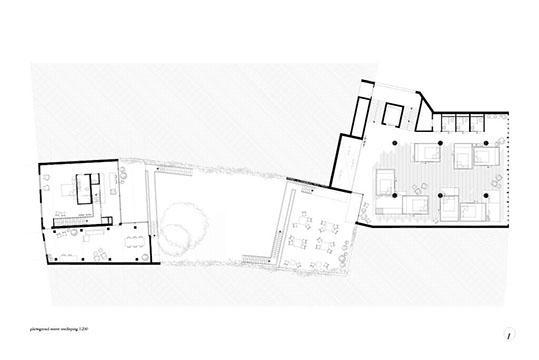
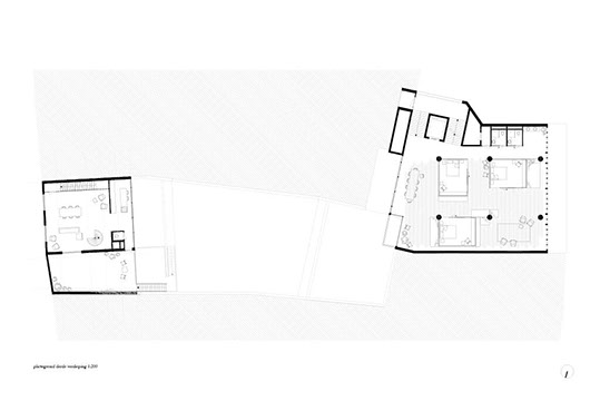
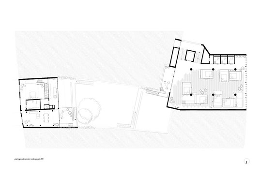
Het uiteindelijke ontwerp is een specifiek ensemble van gebouwen in een bouwblok in Heerlen. Een specifiek deel van de uitbreiding van het stadscentrum in de jaren ’30 heeft vanaf dag 1 mijn aandacht gegrepen, namelijk Pand Kneepkens. In het bouwblok waar Pand Kneepkens deel van uitmaakt, zijn meerdere (deels) leegstaande panden. Een aantal van deze gebouwen ligt aan de Akerstraat. De vroegere verbinding van Pand Kneepkens met het in 1989 gesloopte voormalig ‘Magazijn De Zon’ én het feit dat min of meer tegenover Pand Kneepkens een aantal panden deels leegstaat, was voor mij reden om mijn speldenprik door te trekken, het bouwblok in en door, tot aan Akerstraat 18 en 18a. Op de plek waar de ‘oude’ Akerstraat en het moderne stadscentrum uit de jaren ’30 elkaar tegenkomen in één bouwblok, een typische Heerlense ontmoeting, is mijn ingreep een impuls voor deze plek. Het fietshotel, de werkplaats, fietsenwinkel en –verhuur, de appartementen waarin oud en nieuw elkaar ontmoeten, de vele buitenruimtes; samen vormen zij het ensemble dat in dit specifieke bouwblok in Heerlen de speldenprik vormt, de pijnpunten aanpakt en het een bijzondere plek in de stad geeft.
klik hier om het hele boek te bekijken!